Saturday, 14 March 2026

Strathalbyn Caravan Park expansion van-ture pushes ahead

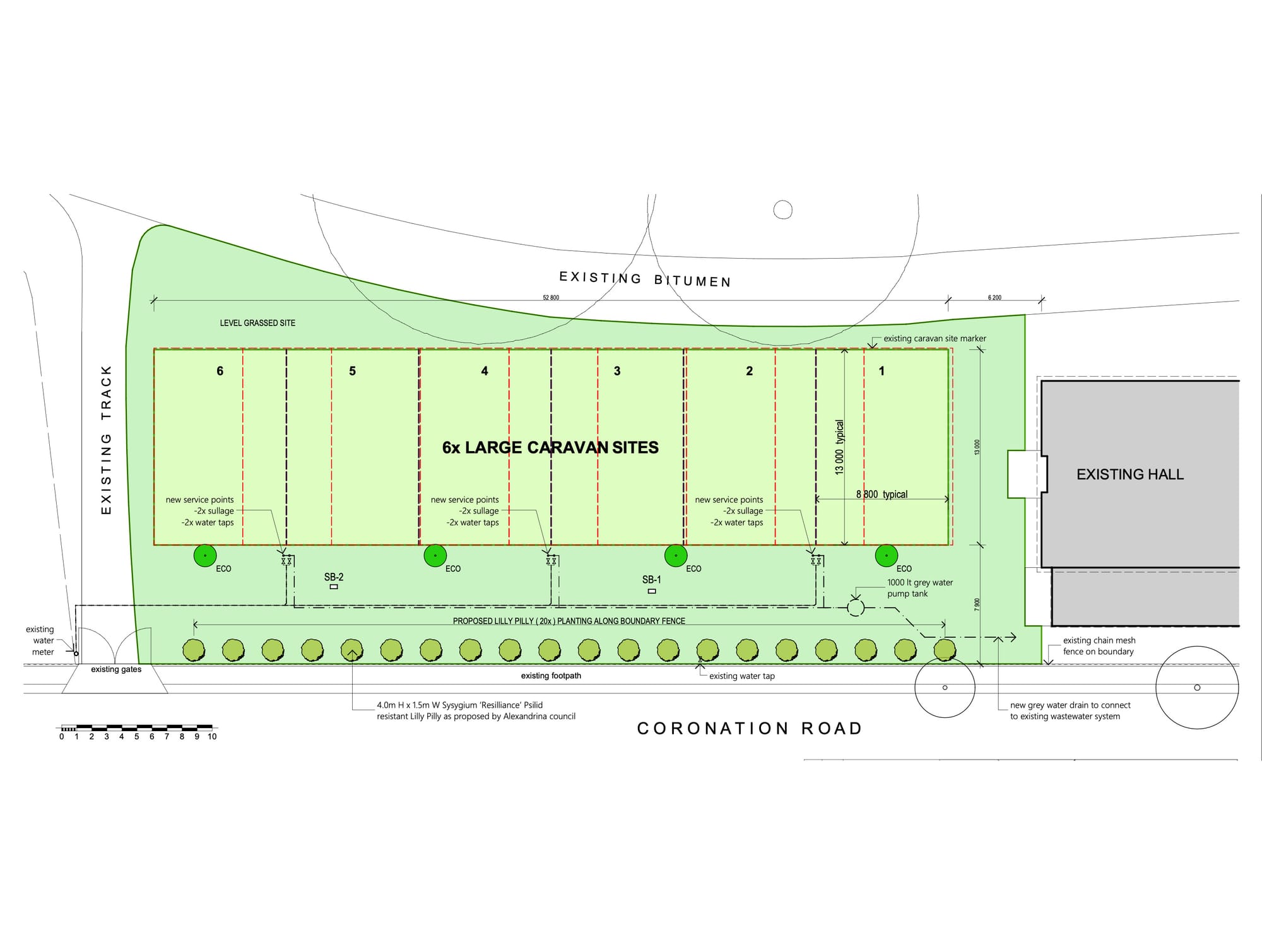
It’s happy camping at the Strathalbyn Caravan Park after planning consent for its expansion was granted by Alexandrina Council on Tuesday. As previously reported in The Southern Argus, the Strathalbyn Oval Controlling Committee lodged plans to...

Giorgina McKay profile image
by Giorgina McKay
Strathalbyn Caravan Park expansion van-ture pushes ahead
Strathalbyn Caravan Park overflow area plans.

Read More

puzzles,videos,hash-videos